Фото и планировки
Вернуться в каталог
ДОМ Триглав Империал
Этажей - 2
Размеры дома - 15 х 16 м
Общая площадь - 300 м²
Комнат - 6
Санузлов - 3
Балкон Есть
Терраса Есть
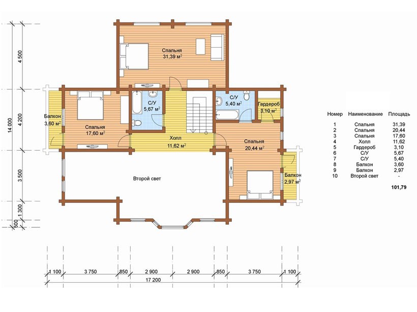
1 этаж занимают просторная прихожая, вместительное хозяйственное помещение, большой холл, 2 отдельные спальные комнаты. Кухня и столовая зона имеют выходы на просторную террасу. В большой гостиной комнате отсутствуют потолочные перекрытия, в результате получается просторная светлая комната со "вторым светом".
На 2 этаже расположены 3 спальни, для удобства к каждой комнате пристроены душевые, совмещенные с санузлом.
Стоимость работ
Цена каркасного дома в базовой комплектации - 3 089 371 руб.
Состав работ в базовой комплектации
Цена каркасного дома в оптимальной комплектации - 4 583 762 руб.
Состав работ в оптимальной комплектации
Цена каркасного дома в комплектации "под ключ" - 7 263 802 руб.
Состав работ в комплектации "Под ключ"
Цена дома из газосиликатных блоков - 3 925 131 руб.
Состав работ в комплектации из газосиликата
Характеристики проекта Триглав Империал
Этажей -
2
Общая площадь
300 м²
Высота 1-го этажа
2,8 м
Высота 2-го этажа
2,6 м
Балкон Есть
Терраса Есть
Все комплектации включают в себя
Проектная документация
Пиломатериал камерной сушки
Обработка антисептиком
Погрузка-разгрузка на объекте
Доставка в любой район М.О
Гидроизоляция фундамента
Уборка
на участке
Закладные под инженерные сети



